• Appartement
  • Vente

Duplex 3 pièces 63 m2 Carrez Quartier Urdazuri, Saint-Je

Saint-Jean-de-Luz
410 000€

Description

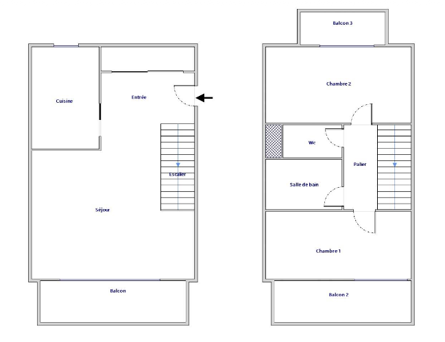
SC IMMOBILIER vous propose de découvrir dans le quartier prisé et vivant d’Urdazuri, à quelques minutes à pied seulement du centre-ville, des Halles, de la plage, des écoles et de la gare, ce superbe appartement en duplex de 63,12 m2 Carrez (80,19 m2 au sol) exposé SUD, situé au deuxième et dernier étage d’une petite copropriété parfaitement entretenue.
Rénové avec soin et offrant de belles prestations, il se compose au rez-de-chaussée, d’une entrée avec rangements, d’un séjour lumineux exposé plein sud avec accès à un large balcon équipé d’un store électrique avec un aperçu sur la Rhune, d’une cuisine séparée, aménagée et équipée. À l’étage deux grandes chambres, chacune avec balcon, une salle de bains avec baignoire et sèche-serviettes et un WC indépendant.
Des atouts supplémentaires grâce à une hauteur sous plafond permettant l’aménagement d’une mezzanine, des menuiseries aluminium double vitrage, des volets roulants électriques et des radiateurs récents.
La résidence est calme et dispose d’un local à vélos, de stationnement libre au pied de la résidence et commodités immédiates à pied (boulangerie, pharmacie, supermarché, cafés…).
Ici, tout se fait à pied ou à vélo : école, plage, commerces, gare… Une vie simple, fluide et confortable au coeur de Saint-Jean-de-Luz, sans compromis.
L’appartement est vendu totalement meublé et équipé !
Une visite s’impose sans tarder.

Résumé

  • Type Appartement
  • Chambres 2
  • Salle de bains 1
  • Surface 63 m²
  • Prix 410,000€

Détails

  • Référence 78
  • Prix 410 000€
  • Les honoraires d'agence seront à la charge du vendeur
  • Année de construction 1970
  • Nombre de pièces 3
  • Nombre de salles de bain 1
  • Nombre d'étages 2
  • Numéro d'étages 2
  • Chauffage Individuel électrique radiateur
  • Cuisine Américaine équipée
  • Copropriété Oui
  • Nombre de lots 23
  • Procédures non

Les plus

  • Balcon
  • Parking

Visite virtuelle

Diagnostic énergétique du bien

DPE non communiqué Consommations non exploitables
* Dont émissions de gaz à effet de serre
GES non communiqué Consommations non exploitables

Géorisques

Les informations sur les risques auxquels ce bien est exposé sont disponibles sur le site Géorisques https://www.georisques.gouv.fr

SC Immobilier
Résumé de la politique de confidentialité

Ce site internet utilise des Cookies afin de vous offrir une meilleure expérience de navigation. Ces derniers sont stockés directement sur votre appareil et nous permettent principalement de savoir quelles sont les pages qui vous intéressent le plus. Les données ne sont ni échangées, ni vendues, et surtout, elles ne sont aucunement nominatives. Ainsi, votre vie privée reste préservée.